• Экологически чистый район

  • Есть консьерж

  • В большинстве квартир - наличие гардеробной

  • Колясочные на каждом этаже

  • 16
    этажей в доме
  • Наземная
    парковка
  • Монолит
    материал дома
  • 1, 2, 3
    планировка квартир

Описание:

16-этажный 2-подъездный «монолитный» жилой дом расположен в г. Иваново на пересечении улиц Полка «Нормандия – Неман» и 4 Деревенской. ЖК Нормандия имеет прекрасную транспортную доступность. Также местоположение жилого комплекса отличает хорошо развитая социальная и коммерческая инфраструктура – магазины, школа, детский сад, больница. А соседство с лесопарком 1905 года в совокупности со сложившейся инфраструктурой района и удобной транспортной доступностью создает высокую комфортность для проживания.

В доме 158 квартир, из них: однокомнатных – 60, двухкомнатных – 66, трехкомнатных – 32. Квартиры улучшенной планировки с увеличенной высотой потолка -2,8 м. Окна и лоджии остеклены ПВХ. В квартирах центральное отопление, установлены счетчики учета. Прилегающая территория закрыта и охраняема. На прилегающей территории предусмотрено благоустройство: тротуары, детская площадка, декоративное озеленение.

Технология «монолита» дает возможность строительства в минимальные сроки, что, безусловно, выглядит несомненным достоинством.

Будучи на 15-20% легче кирпичных, монолитные здания снижают и материалоемкость фундамента за счет меньшего веса конструкций. На выходе получаются сейсмически устойчивые конструкции, которые идеально держат форму дома, стены ровные, а отлитые из бетона полы и потолки полностью лишены пустот и швов, что обеспечивает высокие показатели звуко- и теплоизоляции.

Основной плюс строительства монолитных домов – это скорость выполнения строительных работ. Кроме того, наиболее тяжелые конструкции в таких домах опираются не на стены, а колонны монолита, таким образом, любая перепланировка может быть с успехом реализована без риска нарушения прочности несущих конструкций.

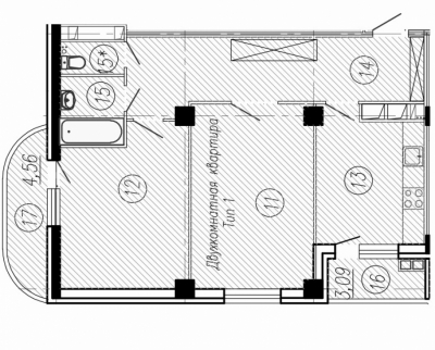
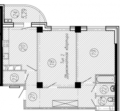
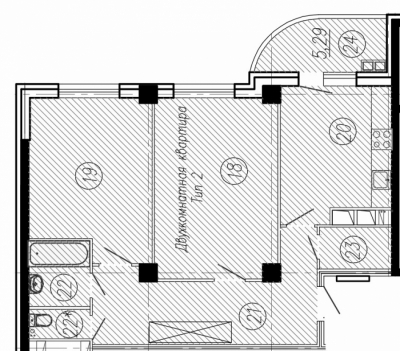
Планировка квартир

16
15
14
13
12
11
10
9
8
7
6
5
4
3
2
1
    • Выберите квартиру

      1 этаж
    • Выберите квартиру

      2 этаж
    • Выберите квартиру

      3 этаж
    • Выберите квартиру

      4 этаж
    • Выберите квартиру

      5 этаж
    • Выберите квартиру

      6 этаж
    • Выберите квартиру

      7 этаж
    • Выберите квартиру

      8 этаж
    • Выберите квартиру

      9 этаж
    • Выберите квартиру

      10 этаж
    • Выберите квартиру

      11 этаж
    • Выберите квартиру

      12 этаж
    • Выберите квартиру

      13 этаж
    • Выберите квартиру

      14 этаж
    • Выберите квартиру

      15 этаж
    • Выберите квартиру

      16 этаж
    • Квартира 1

      Квартира 1
      • № квартиры 1
      • Этаж 1
      • Подъезд 1
      • Количество комнат 3
      • Общая площадь 91,22 (с понижающим коэф. 88,01)
      • Площадь санузла 3,59
      • Площадь кухни 12,46
    • Квартира 2

      Квартира 2
      • № квартиры 2
      • Этаж 1
      • Подъезд 1
      • Количество комнат 2
      • Общая площадь 72,09 (с понижающим коэф. 68,97)
      • Площадь санузла 4,03
      • Площадь кухни 11,41
    • Квартира 3

      Квартира 3
      • № квартиры 3
      • Этаж 1
      • Подъезд 1
      • Количество комнат 2
      • Общая площадь 72,01 (с понижающим коэф. 67,26)
      • Площадь санузла 4,16
      • Площадь кухни 10,84
    • Квартира 4

      Квартира 4
      • № квартиры 4
      • Этаж 1
      • Подъезд 1
      • Количество комнат 2
      • Общая площадь 74,20 (с понижающим коэф. 70,99)
      • Площадь санузла 4,16
      • Площадь кухни 12,30
    • Квартира 5

      Квартира 5
      • № квартиры 5
      • Этаж 2
      • Подъезд 1
      • Количество комнат 2
      • Общая площадь 74,20 (с понижающим коэф. 70,99)
      • Площадь санузла 4,16
      • Площадь кухни 12,30
    • Квартира 6

      Квартира 6
      • № квартиры 6
      • Этаж 2
      • Подъезд 1
      • Количество комнат 2
      • Общая площадь 72,01 (с понижающим коэф. 67,26)
      • Площадь санузла 4,16
      • Площадь кухни 10,84
    • Квартира 7

      Квартира 7
      • № квартиры 7
      • Этаж 2
      • Подъезд 1
      • Количество комнат 1
      • Общая площадь 44,33
      • Площадь санузла 4,17
      • Площадь кухни 10,61
    • Квартира 8

      Квартира 8
      • № квартиры 8
      • Этаж 2
      • Подъезд 1
      • Количество комнат 1
      • Общая площадь 45,15
      • Площадь санузла 4,37
      • Площадь кухни 10,82
    • Квартира 9

      Квартира 9
      • № квартиры 9
      • Этаж 2
      • Подъезд 1
      • Количество комнат 3
      • Общая площадь 89,24
      • Площадь санузла 3,62
      • Площадь кухни 13,18
    • Квартира 10

      Квартира 10
      • № квартиры 10
      • Этаж 3
      • Подъезд 1
      • Количество комнат 2
      • Общая площадь 71,42
      • Площадь санузла 4,2
      • Площадь кухни 12,66
    • Квартира 11

      Квартира 11
      • № квартиры 11
      • Этаж 3
      • Подъезд 1
      • Количество комнат 2
      • Общая площадь 67,2
      • Площадь санузла 4,11
      • Площадь кухни 11,04
    • Квартира 12

      Квартира 12
      • № квартиры 12
      • Этаж 3
      • Подъезд 1
      • Количество комнат 1
      • Общая площадь 44,33
      • Площадь санузла 4,17
      • Площадь кухни 10,61
    • Квартира 13

      Квартира 13
      • № квартиры 13
      • Этаж 3
      • Подъезд 1
      • Количество комнат 1
      • Общая площадь 45,15
      • Площадь санузла 4,37
      • Площадь кухни 10,82
    • Квартира 14

      Квартира 14
      • № квартиры 14
      • Этаж 3
      • Подъезд 1
      • Количество комнат 3
      • Общая площадь 89,24
      • Площадь санузла 3,62
      • Площадь кухни 13,18
    • Квартира 15

      Квартира 15
      • № квартиры 15
      • Этаж 4
      • Подъезд 1
      • Количество комнат 2
      • Общая площадь 71,42
      • Площадь санузла 4,2
      • Площадь кухни 12,66
    • Квартира 16

      Квартира 16
      • № квартиры 16
      • Этаж 4
      • Подъезд 1
      • Количество комнат 2
      • Общая площадь 67,2
      • Площадь санузла 4,11
      • Площадь кухни 11,04
    • Квартира 17

      Квартира 17
      • № квартиры 17
      • Этаж 4
      • Подъезд 1
      • Количество комнат 1
      • Общая площадь 44,33
      • Площадь санузла 4,17
      • Площадь кухни 10,61
    • Квартира 18

      Квартира 18
      • № квартиры 18
      • Этаж 4
      • Подъезд 1
      • Количество комнат 1
      • Общая площадь 45,15
      • Площадь санузла 4,37
      • Площадь кухни 10,82
    • Квартира 19

      Квартира 19
      • № квартиры 19
      • Этаж 4
      • Подъезд 1
      • Количество комнат 3
      • Общая площадь 89,24
      • Площадь санузла 3,62
      • Площадь кухни 13,18
    • Квартира 20

      Квартира 20
      • № квартиры 20
      • Этаж 5
      • Подъезд 1
      • Количество комнат 2
      • Общая площадь 71,42
      • Площадь санузла 4,2
      • Площадь кухни 12,66
    • Квартира 21

      Квартира 21
      • № квартиры 21
      • Этаж 5
      • Подъезд 1
      • Количество комнат 2
      • Общая площадь 67,2
      • Площадь санузла 4,11
      • Площадь кухни 11,04
    • Квартира 22

      Квартира 22
      • № квартиры 22
      • Этаж 5
      • Подъезд 1
      • Количество комнат 1
      • Общая площадь 44,33
      • Площадь санузла 4,17
      • Площадь кухни 10,61
    • Квартира 23

      Квартира 23
      • № квартиры 23
      • Этаж 5
      • Подъезд 1
      • Количество комнат 1
      • Общая площадь 45,15
      • Площадь санузла 4,37
      • Площадь кухни 10,82
    • Квартира 24

      Квартира 24
      • № квартиры 24
      • Этаж 5
      • Подъезд 1
      • Количество комнат 3
      • Общая площадь 89,24
      • Площадь санузла 3,62
      • Площадь кухни 13,18
    • Квартира 25

      Квартира 25
      • № квартиры 25
      • Этаж 6
      • Подъезд 1
      • Количество комнат 2
      • Общая площадь 71,42
      • Площадь санузла 4,2
      • Площадь кухни 12,66
    • Квартира 26

      Квартира 26
      • № квартиры 26
      • Этаж 6
      • Подъезд 1
      • Количество комнат 2
      • Общая площадь 67,2
      • Площадь санузла 4,11
      • Площадь кухни 11,04
    • Квартира 27

      Квартира 27
      • № квартиры 27
      • Этаж 6
      • Подъезд 1
      • Количество комнат 1
      • Общая площадь 44,33
      • Площадь санузла 4,17
      • Площадь кухни 10,61
    • Квартира 28

      Квартира 28
      • № квартиры 28
      • Этаж 6
      • Подъезд 1
      • Количество комнат 1
      • Общая площадь 45,15
      • Площадь санузла 4,37
      • Площадь кухни 10,82
    • Квартира 29

      Квартира 29
      • № квартиры 29
      • Этаж 6
      • Подъезд 1
      • Количество комнат 3
      • Общая площадь 89,24
      • Площадь санузла 3,62
      • Площадь кухни 13,18
    • Квартира 30

      Квартира 30
      • № квартиры 30
      • Этаж 7
      • Подъезд 1
      • Количество комнат 2
      • Общая площадь 71,42
      • Площадь санузла 4,2
      • Площадь кухни 12,66
    • Квартира 31

      Квартира 31
      • № квартиры 31
      • Этаж 7
      • Подъезд 1
      • Количество комнат 2
      • Общая площадь 67,2
      • Площадь санузла 4,11
      • Площадь кухни 11,04
    • Квартира 32

      Квартира 32
      • № квартиры 32
      • Этаж 7
      • Подъезд 1
      • Количество комнат 1
      • Общая площадь 44,33
      • Площадь санузла 4,17
      • Площадь кухни 10,61
    • Квартира 33

      Квартира 33
      • № квартиры 33
      • Этаж 7
      • Подъезд 1
      • Количество комнат 1
      • Общая площадь 45,15
      • Площадь санузла 4,37
      • Площадь кухни 10,82
    • Квартира 34

      Квартира 34
      • № квартиры 34
      • Этаж 7
      • Подъезд 1
      • Количество комнат 3
      • Общая площадь 89,24
      • Площадь санузла 3,62
      • Площадь кухни 13,18
    • Квартира 35

      Квартира 35
      • № квартиры 35
      • Этаж 8
      • Подъезд 1
      • Количество комнат 2
      • Общая площадь 71,42
      • Площадь санузла 4,2
      • Площадь кухни 12,66
    • Квартира 36

      Квартира 36
      • № квартиры 36
      • Этаж 8
      • Подъезд 1
      • Количество комнат 2
      • Общая площадь 67,2
      • Площадь санузла 4,11
      • Площадь кухни 11,04
    • Квартира 37

      Квартира 37
      • № квартиры 37
      • Этаж 8
      • Подъезд 1
      • Количество комнат 1
      • Общая площадь 44,33
      • Площадь санузла 4,17
      • Площадь кухни 10,61
    • Квартира 38

      Квартира 38
      • № квартиры 38
      • Этаж 8
      • Подъезд 1
      • Количество комнат 1
      • Общая площадь 45,15
      • Площадь санузла 4,37
      • Площадь кухни 10,82
    • Квартира 39

      Квартира 39
      • № квартиры 39
      • Этаж 8
      • Подъезд 1
      • Количество комнат 3
      • Общая площадь 89,24
      • Площадь санузла 3,62
      • Площадь кухни 13,18
    • Квартира 40

      Квартира 40
      • № квартиры 40
      • Этаж 9
      • Подъезд 1
      • Количество комнат 2
      • Общая площадь 71,42
      • Площадь санузла 4,2
      • Площадь кухни 12,66
    • Квартира 41

      Квартира 41
      • № квартиры 41
      • Этаж 9
      • Подъезд 1
      • Количество комнат 2
      • Общая площадь 67,2
      • Площадь санузла 4,11
      • Площадь кухни 11,04
    • Квартира 42

      Квартира 42
      • № квартиры 42
      • Этаж 9
      • Подъезд 1
      • Количество комнат 1
      • Общая площадь 44,33
      • Площадь санузла 4,17
      • Площадь кухни 10,61
    • Квартира 43

      Квартира 43
      • № квартиры 43
      • Этаж 9
      • Подъезд 1
      • Количество комнат 1
      • Общая площадь 45,15
      • Площадь санузла 4,37
      • Площадь кухни 10,82
    • Квартира 44

      Квартира 44
      • № квартиры 44
      • Этаж 9
      • Подъезд 1
      • Количество комнат 3
      • Общая площадь 89,24
      • Площадь санузла 3,62
      • Площадь кухни 13,18
    • Квартира 45

      Квартира 45
      • № квартиры 45
      • Этаж 10
      • Подъезд 1
      • Количество комнат 2
      • Общая площадь 71,42
      • Площадь санузла 4,2
      • Площадь кухни 12,66
    • Квартира 46

      Квартира 46
      • № квартиры 46
      • Этаж 10
      • Подъезд 1
      • Количество комнат 2
      • Общая площадь 67,2
      • Площадь санузла 4,11
      • Площадь кухни 11,04
    • Квартира 47

      Квартира 47
      • № квартиры 47
      • Этаж 10
      • Подъезд 1
      • Количество комнат 1
      • Общая площадь 44,33
      • Площадь санузла 4,17
      • Площадь кухни 10,61
    • Квартира 48

      Квартира 48
      • № квартиры 48
      • Этаж 10
      • Подъезд 1
      • Количество комнат 1
      • Общая площадь 45,15
      • Площадь санузла 4,37
      • Площадь кухни 10,82
    • Квартира 49

      Квартира 49
      • № квартиры 49
      • Этаж 10
      • Подъезд 1
      • Количество комнат 3
      • Общая площадь 89,24
      • Площадь санузла 3,62
      • Площадь кухни 13,18
    • Квартира 50

      Квартира 50
      • № квартиры 50
      • Этаж 11
      • Подъезд 1
      • Количество комнат 2
      • Общая площадь 71,42
      • Площадь санузла 4,2
      • Площадь кухни 12,66
    • Квартира 51

      Квартира 51
      • № квартиры 51
      • Этаж 11
      • Подъезд 1
      • Количество комнат 2
      • Общая площадь 67,2
      • Площадь санузла 4,11
      • Площадь кухни 11,04
    • Квартира 52

      Квартира 52
      • № квартиры 52
      • Этаж 11
      • Подъезд 1
      • Количество комнат 1
      • Общая площадь 44,33
      • Площадь санузла 4,17
      • Площадь кухни 10,61
    • Квартира 53

      Квартира 53
      • № квартиры 53
      • Этаж 11
      • Подъезд 1
      • Количество комнат 1
      • Общая площадь 45,15
      • Площадь санузла 4,37
      • Площадь кухни 10,82
    • Квартира 54

      Квартира 54
      • № квартиры 54
      • Этаж 11
      • Подъезд 1
      • Количество комнат 3
      • Общая площадь 89,24
      • Площадь санузла 3,62
      • Площадь кухни 13,18
    • Квартира 55

      Квартира 55
      • № квартиры 55
      • Этаж 12
      • Подъезд 1
      • Количество комнат 2
      • Общая площадь 71,2
      • Площадь санузла 4,28
      • Площадь кухни 12,47
    • Квартира 56

      Квартира 56
      • № квартиры 56
      • Этаж 12
      • Подъезд 1
      • Количество комнат 2
      • Общая площадь 70,61
      • Площадь санузла 4,19
      • Площадь кухни 10,85
    • Квартира 57

      Квартира 57
      • № квартиры 57
      • Этаж 12
      • Подъезд 1
      • Количество комнат 1
      • Общая площадь 44,04
      • Площадь санузла 4,17
      • Площадь кухни 10,32
    • Квартира 58

      Квартира 58
      • № квартиры 58
      • Этаж 12
      • Подъезд 1
      • Количество комнат 1
      • Общая площадь 44,86
      • Площадь санузла 4,37
      • Площадь кухни 10,53
    • Квартира 59

      Квартира 59
      • № квартиры 59
      • Этаж 12
      • Подъезд 1
      • Количество комнат 3
      • Общая площадь 88,81
      • Площадь санузла 3,62
      • Площадь кухни 13,43
    • Квартира 60

      Квартира 60
      • № квартиры 60
      • Этаж 13
      • Подъезд 1
      • Количество комнат 2
      • Общая площадь 71,2
      • Площадь санузла 4,28
      • Площадь кухни 12,47
    • Квартира 61

      Квартира 61
      • № квартиры 61
      • Этаж 13
      • Подъезд 1
      • Количество комнат 2
      • Общая площадь 70,61
      • Площадь санузла 4,19
      • Площадь кухни 10,85
    • Квартира 62

      Квартира 62
      • № квартиры 62
      • Этаж 13
      • Подъезд 1
      • Количество комнат 1
      • Общая площадь 44,04
      • Площадь санузла 4,17
      • Площадь кухни 10,32
    • Квартира 63

      Квартира 63
      • № квартиры 63
      • Этаж 13
      • Подъезд 1
      • Количество комнат 1
      • Общая площадь 44,86
      • Площадь санузла 4,37
      • Площадь кухни 10,53
    • Квартира 64

      Квартира 64
      • № квартиры 64
      • Этаж 13
      • Подъезд 1
      • Количество комнат 3
      • Общая площадь 88,81
      • Площадь санузла 3,62
      • Площадь кухни 13,43
    • Квартира 65

      Квартира 65
      • № квартиры 65
      • Этаж 14
      • Подъезд 1
      • Количество комнат 2
      • Общая площадь 71,2
      • Площадь санузла 4,28
      • Площадь кухни 12,47
    • Квартира 66

      Квартира 66
      • № квартиры 66
      • Этаж 14
      • Подъезд 1
      • Количество комнат 2
      • Общая площадь 70,61
      • Площадь санузла 4,19
      • Площадь кухни 10,85
    • Квартира 67

      Квартира 67
      • № квартиры 67
      • Этаж 14
      • Подъезд 1
      • Количество комнат 1
      • Общая площадь 44,04
      • Площадь санузла 4,17
      • Площадь кухни 10,32
    • Квартира 68

      Квартира 68
      • № квартиры 68
      • Этаж 14
      • Подъезд 1
      • Количество комнат 1
      • Общая площадь 44,86
      • Площадь санузла 4,37
      • Площадь кухни 10,53
    • Квартира 69

      Квартира 69
      • № квартиры 69
      • Этаж 14
      • Подъезд 1
      • Количество комнат 3
      • Общая площадь 88,81
      • Площадь санузла 3,62
      • Площадь кухни 13,43
    • Квартира 70

      Квартира 70
      • № квартиры 70
      • Этаж 15
      • Подъезд 1
      • Количество комнат 2
      • Общая площадь 71,2
      • Площадь санузла 4,28
      • Площадь кухни 12,47
    • Квартира 71

      Квартира 71
      • № квартиры 71
      • Этаж 15
      • Подъезд 1
      • Количество комнат 2
      • Общая площадь 70,61
      • Площадь санузла 4,19
      • Площадь кухни 10,85
    • Квартира 72

      Квартира 72
      • № квартиры 72
      • Этаж 15
      • Подъезд 1
      • Количество комнат 1
      • Общая площадь 44,04
      • Площадь санузла 4,17
      • Площадь кухни 10,32
    • Квартира 73

      Квартира 73
      • № квартиры 73
      • Этаж 15
      • Подъезд 1
      • Количество комнат 1
      • Общая площадь 44,86
      • Площадь санузла 4,37
      • Площадь кухни 10,53
    • Квартира 74

      Квартира 74
      • № квартиры 74
      • Этаж 15
      • Подъезд 1
      • Количество комнат 3
      • Общая площадь 88,81
      • Площадь санузла 3,62
      • Площадь кухни 13,43
    • Квартира 75

      Квартира 75
      • № квартиры 75
      • Этаж 16
      • Подъезд 1
      • Количество комнат 2
      • Общая площадь 71,2
      • Площадь санузла 4,28
      • Площадь кухни 12,47
    • Квартира 76

      Квартира 76
      • № квартиры 76
      • Этаж 16
      • Подъезд 1
      • Количество комнат 2
      • Общая площадь 70,61
      • Площадь санузла 4,19
      • Площадь кухни 10,85
    • Квартира 77

      Квартира 77
      • № квартиры 77
      • Этаж 16
      • Подъезд 1
      • Количество комнат 1
      • Общая площадь 44,04
      • Площадь санузла 4,17
      • Площадь кухни 10,32
    • Квартира 78

      Квартира 78
      • № квартиры 78
      • Этаж 16
      • Подъезд 1
      • Количество комнат 1
      • Общая площадь 44,86
      • Площадь санузла 4,37
      • Площадь кухни 10,53
    • Квартира 79

      Квартира 79
      • № квартиры 79
      • Этаж 16
      • Подъезд 1
      • Количество комнат 3
      • Общая площадь 88,81
      • Площадь санузла 3,62
      • Площадь кухни 13,43
    • Квартира 80

      Квартира 80
      • № квартиры 80
      • Этаж 1
      • Подъезд 2
      • Количество комнат 2
      • Общая площадь 69,55
      • Площадь санузла 4,31
      • Площадь кухни 12,27
    • Квартира 81

      Квартира 81
      • № квартиры 81
      • Этаж 1
      • Подъезд 2
      • Количество комнат 3
      • Общая площадь 89,82
      • Площадь санузла 3,62
      • Площадь кухни 13,43
    • Квартира 82

      Квартира 82
      • № квартиры 82
      • Этаж 1
      • Подъезд 2
      • Количество комнат 2
      • Общая площадь 71,92
      • Площадь санузла 4,42
      • Площадь кухни 12,94
    • Квартира 83

      Квартира 83
      • № квартиры 83
      • Этаж 1
      • Подъезд 2
      • Количество комнат 2
      • Общая площадь 67,7
      • Площадь санузла 4,34
      • Площадь кухни 11,31
    • Квартира 84

      Квартира 84
      • № квартиры 84
      • Этаж 2
      • Подъезд 2
      • Количество комнат 3
      • Общая площадь 89,24
      • Площадь санузла 3,62
      • Площадь кухни 13,18
    • Квартира 85

      Квартира 85
      • № квартиры 85
      • Этаж 2
      • Подъезд 2
      • Количество комнат 1
      • Общая площадь 45,15
      • Площадь санузла 4,37
      • Площадь кухни 10,82
    • Квартира 86

      Квартира 86
      • № квартиры 86
      • Этаж 2
      • Подъезд 2
      • Количество комнат 1
      • Общая площадь 44,33
      • Площадь санузла 4,17
      • Площадь кухни 10,61
    • Квартира 87

      Квартира 87
      • № квартиры 87
      • Этаж 2
      • Подъезд 2
      • Количество комнат 2
      • Общая площадь 67,2
      • Площадь санузла 4,11
      • Площадь кухни 11,04
    • Квартира 88

      Квартира 88
      • № квартиры 88
      • Этаж 2
      • Подъезд 2
      • Количество комнат 2
      • Общая площадь 71,42
      • Площадь санузла 4,2
      • Площадь кухни 12,66
    • Квартира 89

      Квартира 89
      • № квартиры 89
      • Этаж 3
      • Подъезд 2
      • Количество комнат 3
      • Общая площадь 89,24
      • Площадь санузла 3,62
      • Площадь кухни 13,18
    • Квартира 90

      Квартира 90
      • № квартиры 90
      • Этаж 3
      • Подъезд 2
      • Количество комнат 1
      • Общая площадь 45,15
      • Площадь санузла 4,37
      • Площадь кухни 10,82
    • Квартира 91

      Квартира 91
      • № квартиры 91
      • Этаж 3
      • Подъезд 2
      • Количество комнат 1
      • Общая площадь 44,33
      • Площадь санузла 4,17
      • Площадь кухни 10,61
    • Квартира 92

      Квартира 92
      • № квартиры 92
      • Этаж 3
      • Подъезд 2
      • Количество комнат 2
      • Общая площадь 67,2
      • Площадь санузла 4,11
      • Площадь кухни 11,04
    • Квартира 93

      Квартира 93
      • № квартиры 93
      • Этаж 3
      • Подъезд 2
      • Количество комнат 2
      • Общая площадь 71,42
      • Площадь санузла 4,2
      • Площадь кухни 12,66
    • Квартира 94

      Квартира 94
      • № квартиры 94
      • Этаж 4
      • Подъезд 2
      • Количество комнат 3
      • Общая площадь 89,24
      • Площадь санузла 3,62
      • Площадь кухни 13,18
    • Квартира 95

      Квартира 95
      • № квартиры 95
      • Этаж 4
      • Подъезд 2
      • Количество комнат 1
      • Общая площадь 45,15
      • Площадь санузла 4,37
      • Площадь кухни 10,82
    • Квартира 96

      Квартира 96
      • № квартиры 96
      • Этаж 4
      • Подъезд 2
      • Количество комнат 1
      • Общая площадь 44,33
      • Площадь санузла 4,17
      • Площадь кухни 10,61
    • Квартира 97

      Квартира 97
      • № квартиры 97
      • Этаж 4
      • Подъезд 2
      • Количество комнат 2
      • Общая площадь 67,2
      • Площадь санузла 4,11
      • Площадь кухни 11,04
    • Квартира 98

      Квартира 98
      • № квартиры 98
      • Этаж 4
      • Подъезд 2
      • Количество комнат 2
      • Общая площадь 71,42
      • Площадь санузла 4,2
      • Площадь кухни 12,66
    • Квартира 99

      Квартира 99
      • № квартиры 99
      • Этаж 5
      • Подъезд 2
      • Количество комнат 3
      • Общая площадь 89,24
      • Площадь санузла 3,62
      • Площадь кухни 13,18
    • Квартира 100

      Квартира 100
      • № квартиры 100
      • Этаж 5
      • Подъезд 2
      • Количество комнат 1
      • Общая площадь 45,15
      • Площадь санузла 4,37
      • Площадь кухни 10,82
    • Квартира 101

      Квартира 101
      • № квартиры 101
      • Этаж 5
      • Подъезд 2
      • Количество комнат 1
      • Общая площадь 44,33
      • Площадь санузла 4,17
      • Площадь кухни 10,61
    • Квартира 102

      Квартира 102
      • № квартиры 102
      • Этаж 5
      • Подъезд 2
      • Количество комнат 2
      • Общая площадь 67,2
      • Площадь санузла 4,11
      • Площадь кухни 11,04
    • Квартира 103

      Квартира 103
      • № квартиры 103
      • Этаж 5
      • Подъезд 2
      • Количество комнат 2
      • Общая площадь 71,42
      • Площадь санузла 4,2
      • Площадь кухни 12,66
    • Квартира 104

      Квартира 104
      • № квартиры 104
      • Этаж 6
      • Подъезд 2
      • Количество комнат 3
      • Общая площадь 89,24
      • Площадь санузла 3,62
      • Площадь кухни 13,18
    • Квартира 105

      Квартира 105
      • № квартиры 105
      • Этаж 6
      • Подъезд 2
      • Количество комнат 1
      • Общая площадь 45,15
      • Площадь санузла 4,37
      • Площадь кухни 10,82
    • Квартира 106

      Квартира 106
      • № квартиры 106
      • Этаж 6
      • Подъезд 2
      • Количество комнат 1
      • Общая площадь 44,33
      • Площадь санузла 4,17
      • Площадь кухни 10,61
    • Квартира 107

      Квартира 107
      • № квартиры 107
      • Этаж 6
      • Подъезд 2
      • Количество комнат 2
      • Общая площадь 67,2
      • Площадь санузла 4,11
      • Площадь кухни 11,04
    • Квартира 108

      Квартира 108
      • № квартиры 108
      • Этаж 6
      • Подъезд 2
      • Количество комнат 2
      • Общая площадь 71,42
      • Площадь санузла 4,2
      • Площадь кухни 12,66
    • Квартира 109

      Квартира 109
      • № квартиры 109
      • Этаж 7
      • Подъезд 2
      • Количество комнат 3
      • Общая площадь 89,24
      • Площадь санузла 3,62
      • Площадь кухни 13,18
    • Квартира 110

      Квартира 110
      • № квартиры 110
      • Этаж 7
      • Подъезд 2
      • Количество комнат 1
      • Общая площадь 45,15
      • Площадь санузла 4,37
      • Площадь кухни 10,82
    • Квартира 111

      Квартира 111
      • № квартиры 111
      • Этаж 7
      • Подъезд 2
      • Количество комнат 1
      • Общая площадь 44,33
      • Площадь санузла 4,17
      • Площадь кухни 10,61
    • Квартира 112

      Квартира 112
      • № квартиры 112
      • Этаж 7
      • Подъезд 2
      • Количество комнат 2
      • Общая площадь 67,2
      • Площадь санузла 4,11
      • Площадь кухни 11,04
    • Квартира 113

      Квартира 113
      • № квартиры 113
      • Этаж 7
      • Подъезд 2
      • Количество комнат 2
      • Общая площадь 71,42
      • Площадь санузла 4,2
      • Площадь кухни 12,66
    • Квартира 114

      Квартира 114
      • № квартиры 114
      • Этаж 8
      • Подъезд 2
      • Количество комнат 3
      • Общая площадь 89,24
      • Площадь санузла 3,62
      • Площадь кухни 13,18
    • Квартира 115

      Квартира 115
      • № квартиры 115
      • Этаж 8
      • Подъезд 2
      • Количество комнат 1
      • Общая площадь 45,15
      • Площадь санузла 4,37
      • Площадь кухни 10,82
    • Квартира 116

      Квартира 116
      • № квартиры 116
      • Этаж 8
      • Подъезд 2
      • Количество комнат 1
      • Общая площадь 44,33
      • Площадь санузла 4,17
      • Площадь кухни 10,61
    • Квартира 117

      Квартира 117
      • № квартиры 117
      • Этаж 8
      • Подъезд 2
      • Количество комнат 2
      • Общая площадь 67,2
      • Площадь санузла 4,11
      • Площадь кухни 11,04
    • Квартира 118

      Квартира 118
      • № квартиры 118
      • Этаж 8
      • Подъезд 2
      • Количество комнат 2
      • Общая площадь 71,42
      • Площадь санузла 4,2
      • Площадь кухни 12,66
    • Квартира 119

      Квартира 119
      • № квартиры 119
      • Этаж 9
      • Подъезд 2
      • Количество комнат 3
      • Общая площадь 89,24
      • Площадь санузла 3,62
      • Площадь кухни 13,18
    • Квартира 120

      Квартира 120
      • № квартиры 120
      • Этаж 9
      • Подъезд 2
      • Количество комнат 1
      • Общая площадь 45,15
      • Площадь санузла 4,37
      • Площадь кухни 10,82
    • Квартира 121

      Квартира 121
      • № квартиры 121
      • Этаж 9
      • Подъезд 2
      • Количество комнат 1
      • Общая площадь 44,33
      • Площадь санузла 4,17
      • Площадь кухни 10,61
    • Квартира 122

      Квартира 122
      • № квартиры 122
      • Этаж 9
      • Подъезд 2
      • Количество комнат 2
      • Общая площадь 67,2
      • Площадь санузла 4,11
      • Площадь кухни 11,04
    • Квартира 123

      Квартира 123
      • № квартиры 123
      • Этаж 9
      • Подъезд 2
      • Количество комнат 2
      • Общая площадь 71,42
      • Площадь санузла 4,2
      • Площадь кухни 12,66
    • Квартира 124

      Квартира 124
      • № квартиры 124
      • Этаж 10
      • Подъезд 2
      • Количество комнат 3
      • Общая площадь 89,24
      • Площадь санузла 3,62
      • Площадь кухни 13,18
    • Квартира 125

      Квартира 125
      • № квартиры 125
      • Этаж 10
      • Подъезд 2
      • Количество комнат 1
      • Общая площадь 45,15
      • Площадь санузла 4,37
      • Площадь кухни 10,82
    • Квартира 126

      Квартира 126
      • № квартиры 126
      • Этаж 10
      • Подъезд 2
      • Количество комнат 1
      • Общая площадь 44,33
      • Площадь санузла 4,17
      • Площадь кухни 10,61
    • Квартира 127

      Квартира 127
      • № квартиры 127
      • Этаж 10
      • Подъезд 2
      • Количество комнат 2
      • Общая площадь 67,2
      • Площадь санузла 4,11
      • Площадь кухни 11,04
    • Квартира 128

      Квартира 128
      • № квартиры 128
      • Этаж 10
      • Подъезд 2
      • Количество комнат 2
      • Общая площадь 71,42
      • Площадь санузла 4,2
      • Площадь кухни 12,66
    • Квартира 129

      Квартира 129
      • № квартиры 129
      • Этаж 11
      • Подъезд 2
      • Количество комнат 3
      • Общая площадь 89,24
      • Площадь санузла 3,62
      • Площадь кухни 13,18
    • Квартира 130

      Квартира 130
      • № квартиры 130
      • Этаж 11
      • Подъезд 2
      • Количество комнат 1
      • Общая площадь 45,15
      • Площадь санузла 4,37
      • Площадь кухни 10,82
    • Квартира 131

      Квартира 131
      • № квартиры 131
      • Этаж 11
      • Подъезд 2
      • Количество комнат 1
      • Общая площадь 44,33
      • Площадь санузла 4,17
      • Площадь кухни 10,61
    • Квартира 132

      Квартира 132
      • № квартиры 132
      • Этаж 11
      • Подъезд 2
      • Количество комнат 2
      • Общая площадь 67,2
      • Площадь санузла 4,11
      • Площадь кухни 11,04
    • Квартира 133

      Квартира 133
      • № квартиры 133
      • Этаж 11
      • Подъезд 2
      • Количество комнат 2
      • Общая площадь 71,42
      • Площадь санузла 4,2
      • Площадь кухни 12,66
    • Квартира 134

      Квартира 134
      • № квартиры 134
      • Этаж 12
      • Подъезд 2
      • Количество комнат 3
      • Общая площадь 88,81
      • Площадь санузла 3,62
      • Площадь кухни 12,98
    • Квартира 135

      Квартира 135
      • № квартиры 135
      • Этаж 12
      • Подъезд 2
      • Количество комнат 1
      • Общая площадь 44,86
      • Площадь санузла 4,37
      • Площадь кухни 10,53
    • Квартира 136

      Квартира 136
      • № квартиры 136
      • Этаж 12
      • Подъезд 2
      • Количество комнат 1
      • Общая площадь 44,04
      • Площадь санузла 4,17
      • Площадь кухни 10,32
    • Квартира 137

      Квартира 137
      • № квартиры 137
      • Этаж 12
      • Подъезд 2
      • Количество комнат 2
      • Общая площадь 70,61
      • Площадь санузла 4,19
      • Площадь кухни 10,85
    • Квартира 138

      Квартира 138
      • № квартиры 138
      • Этаж 12
      • Подъезд 2
      • Количество комнат 2
      • Общая площадь 71,2
      • Площадь санузла 4,28
      • Площадь кухни 12,47
    • Квартира 139

      Квартира 139
      • № квартиры 139
      • Этаж 13
      • Подъезд 2
      • Количество комнат 3
      • Общая площадь 88,81
      • Площадь санузла 3,62
      • Площадь кухни 12,98
    • Квартира 140

      Квартира 140
      • № квартиры 140
      • Этаж 13
      • Подъезд 2
      • Количество комнат 1
      • Общая площадь 44,86
      • Площадь санузла 4,37
      • Площадь кухни 10,53
    • Квартира 141

      Квартира 141
      • № квартиры 141
      • Этаж 13
      • Подъезд 2
      • Количество комнат 1
      • Общая площадь 44,04
      • Площадь санузла 4,17
      • Площадь кухни 10,32
    • Квартира 142

      Квартира 142
      • № квартиры 142
      • Этаж 13
      • Подъезд 2
      • Количество комнат 2
      • Общая площадь 70,61
      • Площадь санузла 4,19
      • Площадь кухни 10,85
    • Квартира 143

      Квартира 143
      • № квартиры 143
      • Этаж 13
      • Подъезд 2
      • Количество комнат 2
      • Общая площадь 71,2
      • Площадь санузла 4,28
      • Площадь кухни 12,47
    • Квартира 144

      Квартира 144
      • № квартиры 144
      • Этаж 14
      • Подъезд 2
      • Количество комнат 3
      • Общая площадь 88,81
      • Площадь санузла 3,62
      • Площадь кухни 12,98
    • Квартира 145

      Квартира 145
      • № квартиры 145
      • Этаж 14
      • Подъезд 2
      • Количество комнат 1
      • Общая площадь 44,86
      • Площадь санузла 4,37
      • Площадь кухни 10,53
    • Квартира 146

      Квартира 146
      • № квартиры 146
      • Этаж 14
      • Подъезд 2
      • Количество комнат 1
      • Общая площадь 44,04
      • Площадь санузла 4,17
      • Площадь кухни 10,32
    • Квартира 147

      Квартира 147
      • № квартиры 147
      • Этаж 14
      • Подъезд 2
      • Количество комнат 2
      • Общая площадь 70,61
      • Площадь санузла 4,19
      • Площадь кухни 10,85
    • Квартира 148

      Квартира 148
      • № квартиры 148
      • Этаж 14
      • Подъезд 2
      • Количество комнат 2
      • Общая площадь 71,2
      • Площадь санузла 4,28
      • Площадь кухни 12,47
    • Квартира 149

      Квартира 149
      • № квартиры 149
      • Этаж 15
      • Подъезд 2
      • Количество комнат 3
      • Общая площадь 88,81
      • Площадь санузла 3,62
      • Площадь кухни 12,98
    • Квартира 150

      Квартира 150
      • № квартиры 150
      • Этаж 15
      • Подъезд 2
      • Количество комнат 1
      • Общая площадь 44,86
      • Площадь санузла 4,37
      • Площадь кухни 10,53
    • Квартира 151

      Квартира 151
      • № квартиры 151
      • Этаж 15
      • Подъезд 2
      • Количество комнат 1
      • Общая площадь 44,04
      • Площадь санузла 4,17
      • Площадь кухни 10,32
    • Квартира 152

      Квартира 152
      • № квартиры 152
      • Этаж 15
      • Подъезд 2
      • Количество комнат 2
      • Общая площадь 70,61
      • Площадь санузла 4,19
      • Площадь кухни 10,85
    • Квартира 153

      Квартира 153
      • № квартиры 153
      • Этаж 15
      • Подъезд 2
      • Количество комнат 2
      • Общая площадь 71,2
      • Площадь санузла 4,28
      • Площадь кухни 12,47
    • Квартира 154

      Квартира 154
      • № квартиры 154
      • Этаж 16
      • Подъезд 2
      • Количество комнат 3
      • Общая площадь 88,81
      • Площадь санузла 3,62
      • Площадь кухни 12,98
    • Квартира 155

      Квартира 155
      • № квартиры 155
      • Этаж 16
      • Подъезд 2
      • Количество комнат 1
      • Общая площадь 44,86
      • Площадь санузла 4,37
      • Площадь кухни 10,53
    • Квартира 156

      Квартира 156
      • № квартиры 156
      • Этаж 16
      • Подъезд 2
      • Количество комнат 1
      • Общая площадь 44,04
      • Площадь санузла 4,17
      • Площадь кухни 10,32
    • Квартира 157

      Квартира 157
      • № квартиры 157
      • Этаж 16
      • Подъезд 2
      • Количество комнат 2
      • Общая площадь 70,61
      • Площадь санузла 4,19
      • Площадь кухни 10,85
    • Квартира 158

      Квартира 158
      • № квартиры 158
      • Этаж 16
      • Подъезд 2
      • Количество комнат 2
      • Общая площадь 71,2
      • Площадь санузла 4,28
      • Площадь кухни 12,47
    X

    Заказать звонок

    Оставьте заявку и наш менеджер свяжется с Вами в самое ближайшее время

    X

    Выбрать квартиру

    Оставьте заявку и наш менеджер свяжется с Вами в самое ближайшее время

    Яндекс.Метрика